
Centru medical comunitar, Vâlcea
Proiect dispensar medical uman în mediul rural, cu 2 cabinete de consultație, 2 săli de tratament, 1 cabinet de izolare, farmacie și grădină terapeutică (2024)
Studio: Archos2002 și Arhipera
Colectiv: arh. Lorin Niculae, arh. Irina Scobiola, stud. arh. Ana Alecu, stud. arh. Mihaela Oancea, stud. arh. Andreea Ralea, stud. arh. Silvia Niculae, stud. arh. Irina Ursea
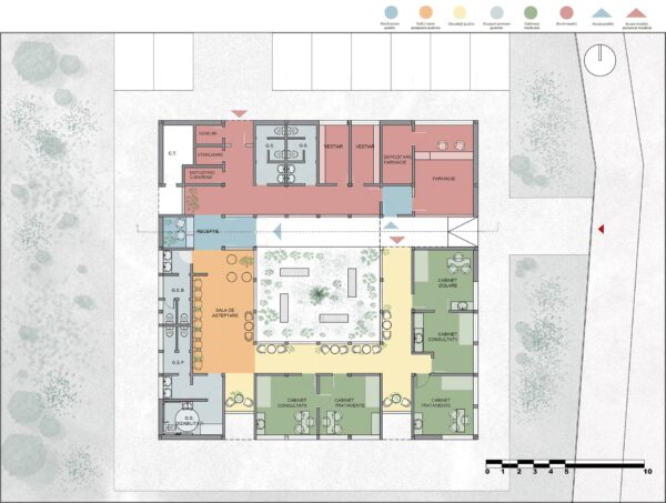
Tipologia aleasă este de clădire cu atrium. Accesul se face printr-un portal accentuat care conduce vizitatorii în curtea interioară, tratată ca o grădină terapeutică. Impresia favorabilă este prelungită la interior, acolo unde schema de culori aleasă promovează contrastul unor pasteluri ce sugerează prospețime. Coridorul de acces la cabinete și săli de tratament este luminos, mărginit fiind de pereții vitrați ai atriumului, iar capetele de perspectivă sunt mereu controlate și valorificate prin conformare spațială, finisaje, lumină și exponate.
Centrul medical are un aspect introvertit, el mizând pe surpriza descoperirii grădinii terapeutice din atrium. Aceasta servește și ca sală de așteptare pe timp frumos. Prin glisarea pereților vitrați ai coridoarelor se creează un continuum spațial care unifică sala de așteptare și curtea. Ambianța terapeutică, tonul pozitiv, designul biofil conlucrează pentru o expresie distinctă a unui design centrat pe pacient.
Proiect care a apărut în cartea ,,Arhitectura centrelor medicale în mediul rural. Ghid de bune practici’’ (2024), capitolul ,,Ilustrări de temă: 4 proiecte’’.
*
AP1.13 “Sate Sănătoase” Apelul de proiecte Nr. 1 “Îmbunătățirea accesului la serviciile de sănătate în special pentru grupurile vulnerabile, inclusiv Romi”, program coordonat de Ministerul Sănătății și derulat în parteneriat cu Primăria Comunei Beica de Jos, apel finanțat în cadrul Programului “Provocări în sănătatea publică la nivel european” – Mecanismul Financiar SEE 2014-2021

























